
Via dei Giustinelli 4, Trieste
380.000€
VENDUTO
Appartamento moderno
Nell'incantevole cornice del centro di Trieste, vi proponiamo un affascinante appartamento a due passi da Piazza Unità d'Italia.
La parte antica della città sopra Piazza Cavana racconta lo splendore architettonico degli edifici d'epoca e vi permette di vivere il centro cittadino in una delle zone più suggestive e vicine al mare.


Funzionalità
ed eleganza
Alta efficienza energetica per consumi ridotti e massimo comfort – Materiali di pregio e finiture moderne – Riscaldamento centralizzato con conteggio dei consumi. Ambiente luminoso e funzionale.
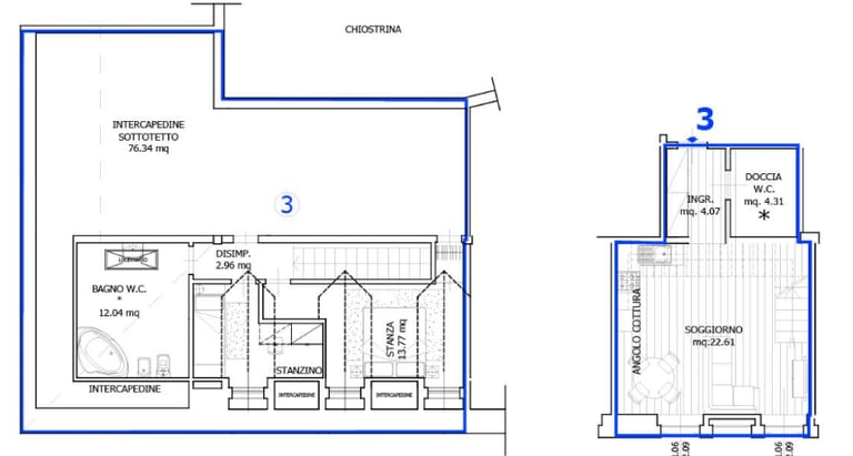
Appartamento nuovo disposto su due livelli con affaccio luminoso sulla via dei Giustinelli. La posizione garantisce massima comodità. Consegna luglio 2025. L’alloggio si compone di ingresso, zona giorno/cottura, bagno, al piano superiore due camere da letto (una singola e una matrimoniale ) ulteriore bagno e due ampi sottotetti. Cl. energetica prevista B
Superficie: 125 mq
Piano: 6
Piani dell'edificio: 7
Ascensore: 1
Locali: 3
Soggiorno: 1
Bagni: 1
Cucina: Angolo cottura
Box auto: assente


Servizi
Consulenza per compravendita e affitto immobili.
Contatti
Informazioni
Mobile: +39 3501439885
Partita IVA: 01423650322
Numero REA: 215035
© 2025. Lungomare immobiliare
Mail: dm@lungomareimm.com
Le metrature, le foto e le informazioni riportate nel sito sono indicative e non possono costituire nessun motivo di pretesa contrattuale e/o altro.


